Overview
- House
- 3
- 2
- 2
- 238 m²
Description
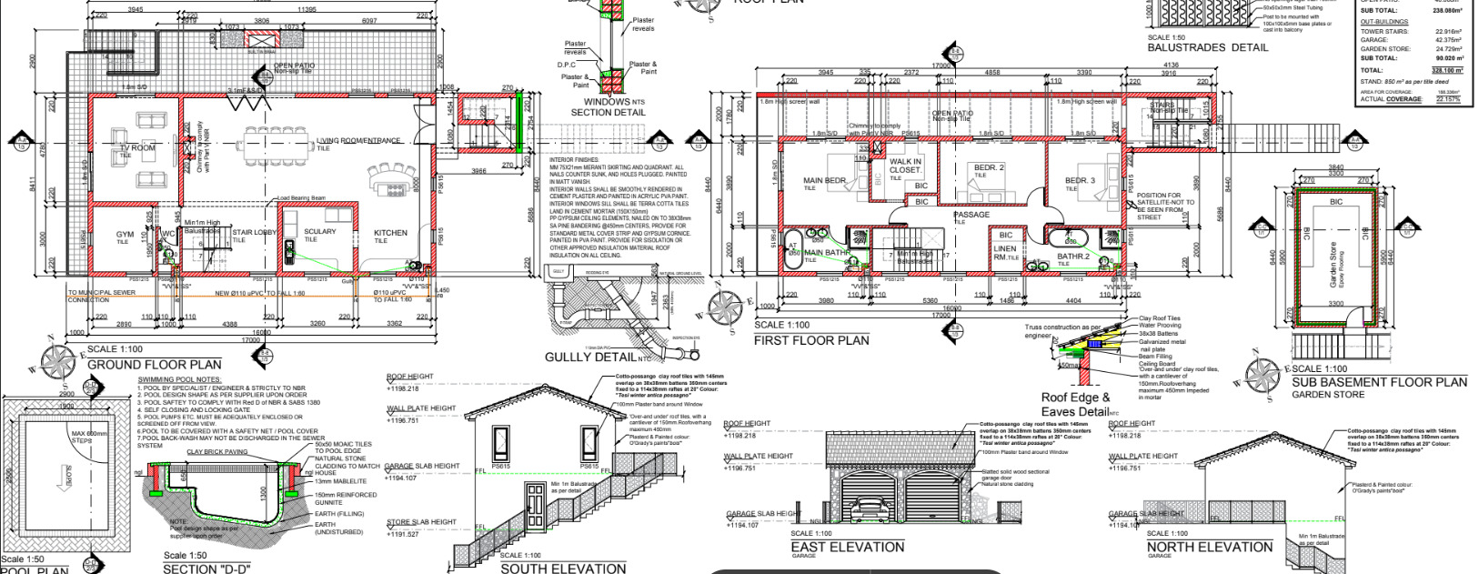
This is the perfect opportunity to finish and enjoy this half built double story home situated in the sought after French Flair Estate in Hartbeespoort. The property is situated on a 850sqm stand with stunning views of the mountains and Haarties Dam. The spacious family house can be a masterpiece when its completed with very well designed plans for luxurious living. The ground level 238.080 sqm and consists of Entrance, open plan lounge dining area, kitchen, separate scullery laundry, study which can be converted into a gym or additional bedroom, double garage, store room and patio .
Property Documents
Details
Updated on January 23, 2026 at 12:41 pm-
Price R999,500.00
-
Property Size 238 m²
-
Bedrooms 3
-
Bathrooms 2
-
Garages 2
-
Property Type House
-
Property Status For Sale
Bond Calculator
-
Down Payment
-
Loan Amount
-
Monthly Bond Payment
Similar Listings
5 Income Powerhouse Residential Property in Boksburg
26B GOLF STREETThis remarkable property, priced just under 4 million Rand is located close...
House for Sale Kosmosdal
Manikie Street, Tshwane Ward 77, City of Tshwane Metropolitan Municipality, Gauteng, 1687, South AfricaHouse in sought after secure golf estate for sale. Stand size 840...
Deceased Estate Sale – 3.03ha Property in Wilderness Heights
Wilderness, George, Western Cape, 6560, South AfricaRare opportunity to own a beautiful 3.03 hectare property in sought-after Wilderness...
Income-Generating Property in Belhar – R19,000+ Rental | Bond ±R16,700 Asking R1 699 000
28 Kuyper Crescent, Cape Town Ward 12, City of Cape Town, Western Cape, 7581, South AfricaLooking for a property that helps pay for itself from day one?...










